Doppelhaus-Hälfte als Ausbauhaus in der Gartenstadt ERIKA Laubusch
Oststraße OT Laubusch,02991 Lauta
- Wohnflächeca. 130,00 m²
- Zimmer5
Objektbeschreibung
In der denkmalgeschützten Gartenstadt ERIKA in Laubusch entsteht in einer Baulücke ein modernes Haus für zwei Familien. Die abgestimmte Planung sieht den Bau eines Doppelhauses mit großzügiger Raumaufteilung vor. Für Familien besonders attraktiv ist das Angebot als Ausbauhaus.
Zwei Vollgeschosse ohne Dachschrägen und ein ebenfalls ausbaufähiges Dachgeschoss geben Spielraum für individuelle Lösungen. Zu den dargestellten Grundrissen und Planzeichnungen sind Änderungen vorbehalten und bei der endgültigen Aufteilung der Wohnräume ausdrücklich möglich.
Käufer erwerben das Grundstück von der Wohnungsgenossenschaft Laubusch e.G. (im angegebenen Preis nicht enthalten) und der Neubau des Wohnhauses erfolgt durch die Lausitzer Massivbau GmbH (angegebener Grundpreis) inklusive der vollständigen Genehmigungsplanung, Architekturleistung und Bauüberwachung. Der Innenausbau erfolgt entweder als Eigenleistung bzw. in Eigenregie oder gegen Aufpreis durch die LMB.
Die angegebene Grundstücksgröße bezieht sich auf die linke Doppelhaus-Hälfte.
Weitere Grundstücke und Objekte werden gerade erschlossen und können bereits angefragt werden.
In der Siedlung sind Fernwärme- und Glasfasernetz ausgebaut.
Raumaufteilung
Im Erdgeschoss mit ebenerdigem Zugang ist ein großzügiger, offener Bereich für Wohnen und Kochen vorgesehen, von dem aus das Haus zentral erschlossen wird.
Über bodentiefe Fenster werden Garten und Terrasse einbezogen. Hinzu kommen Gäste-WC, Technik- und Abstellraum.
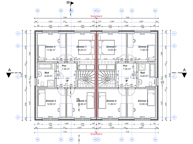
Im Obergeschoss sind vier gleichwertige Schlaf- und Kinderzimmer ohne Dachschrägen sowie ein großzügiges Badezimmer geplant. Eine andere Raumaufteilung, z.B. mit einem Schlafzimmer und zwei Kinderzimmern ist ebenso umsetzbar.
Das Dachgeschoss mit 45° Dachneigung und auf ca. 42 m² ausbaufähig. Die vorgesehene Treppe (Ausbauleistung) kann ins Dachgeschoss verlängert werden.
Lagebeschreibung
Laubusch ist ein Ortsteil der Stadt Lauta und als Tor zum Lausitzer Seenland bekannt. Von hier aus erreicht man die Städte Hoyerswerda und Senftenberg in ca. 15-20 Autominuten. Die vielfältigen Möglichkeiten der nur wenige Kilometer entfernten Seen und das ruhige Wohnumfeld tragen ebenso zum angenehmen Wohnen bei wie die Möglichkeiten der Kinderbetreuung, des Grundschulbesuches, der Einkaufsmöglichkeiten und der ärztlichen Versorgung.
Besichtigungstermine
Der Baubeginn ist kurzfristig möglich.
Über Ihre Vorstellungen, die flexiblen Möglichkeiten zur Anpassung der Planung sowie über weitere bebaubare Grundstücke, sprechen Sie mit dem beauftragtem Makler Mathias Priebe Immobilien aus Lauta.
Termine stimmen Interessenten mit ihm direkt ab: 035722 955330 oder per Mail: info@erika.jetzt
Der Kontakt ist ebenso über die Wohnungsgenossenschaft Laubusch e.G. möglich:
035722 22970 oder info@wg-laubusch.de

Immobilien-Daten bereitgestellt von immowelt.de